Cała aktywność
Strumień aktualizowany automatycznie
- Ostatnia godzina
-
-
Artur_C dołączył do społeczności
-
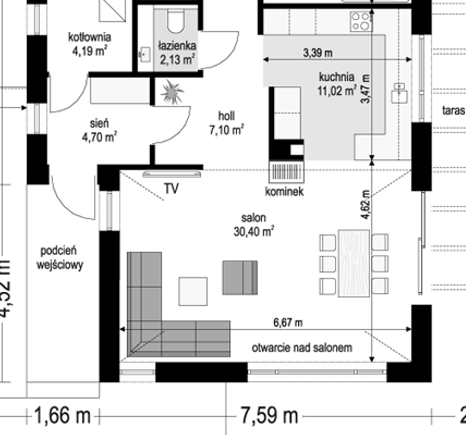
garson zaczął obserwować Kino domowe, salon - wysoki sufit, 30 m2, rozmieszczenie.
-
Cześć i pozdrawiam wszystkich serdecznie, Proszę o poradę czy zestaw nad którym myślę będzie dobrze dobrany do pomieszczenia i jak w miarę możliwości te kolumny sensownie rozmieścić ? Dom jednorodzinny, salon 30 m2 - wysoki sufit Aktualnie w obecnym mieszkaniu o mniejszych gabarytach użytkuję * kolumny głośnikowe Monitor Audio Bronze 2 na podstawkach, * Monitor Audio bronze center, * Kolumny surround Monitor Audio Bronze FX, * Subwoofer JBL. W planach po przeprowadzce planuje ulepszyć zestaw z racji większego salonu na: * Monitor Audio Silver 500, * Monitor Audio Silver C250, * SVS SB2000 PRO Subwoofer Z racji układu pomieszczenia ciężko tu zamontować Monitor Audio FX - ewentualnie czy one mają sens bycia w miejscu zaznaczone kółkiem koloru żółtego? Kolumny surround aby ograniczyć budżet chciałbym wykorzystać Brozne 2 na podstawkach, które już mam. Kolumnę koło kominka będą musiał cały czas przestawiać, no chyba, że ktoś tu widzi jakieś inne sensowne rozwiązanie? Amplituner już zakupiłem w tym roku - Denon X3800h. Przeznaczenie kino / muzyka. Dolby Atmos - co my myślicie na tym wysokim suficie? Jakieś możliwości, rozwiązania, czy nie brać pod uwagę? Proszę o poradę co do rozmieszczenia głośników, opinie nt zestawu, czy będzie odpowiedni co do wielkości salonu. Nie ukrywam, że obawiam się trochę tego wysokiego sufitu jak to ze sobą współgra.. Tv 65/77 cali, odległość do sofy około 350 cm. Zdjęcia poglądowe, plan oryginalny zmodyfikowany - TV zaznaczony kolorem czerwonym (na szerszej ścianie). Z góry dziękuję za pomoc i wszelkie uwagi.
-
Czy można przyjąć jakiś optymalny stosunek powierzchnii perforacji do ogólnej powierzchnii wszystkich płaszczyzn w pomieszczeniu? Przyjmijmy, że pomieszczenie jest w nowoczesnej aranżacji, duże okna, twarde powierzchnie. Sufit stanowi 25% wszystkich powierzchnii w pomieszczeniu. Czy w takim przypadku nie będzie przesadą, gdy cały sufit pokryjemy płytą perforowaną?
-
Krystian Forszpaniak zaczął obserwować Pylon Jasper 23
-
Szanowni, Czy Lyngdorf TDAI 1120 "uciągnie" z dobrym efektem Pylon Audio Jasper 23? Czy byłby to raczej mezalians dla Pylona?
- Today
-
Nie słuchałem ale lepszą opcją w tej chwili wydają się Opticony, np porównując Sonik 7 vs Opitcon 6 mk2 cena jest zbliżona a dostajemy kolumny sytuowane przez Dali serię wyżej
-
Adam @kaczadupa, co się stało z Twoimi ATC?
-
Raczej przerosla. Kilkakrotnie😁
-
No dlatego go trzymam. Nawet oryginalny, aluminiowy pilot jest. To ma 70kg żywej wagi.
-
garson dołączył do społeczności
-
To zrobiło się teraz. Wcześniej było ok. I inne źródła dźwięku też dają dobry dźwięk. Tylko Tidal connect z telefonu tak kaszani. I to od dwóch tygodni. Wcześniej było dobrze.
-
Nie wiem.... obawiam się, że nawet jeżeli nie jest słyszalny sam mechanizm, to może być słychać wirujący dysk...🤔. Mam taką deskę do krojenia z ikei, byloby do kompletu...😄 Nie wiedziałem, że Chord robi odtwarzacze. Dość pretensjonalne wzornictwo. Ciekawe czy forma przerosła treść....
-
Słuchałem AP Classic 8 u kolegi którego pokój ma jakieś 22-23 metry i w żadnym wypadku nie było problemu z basem. Moim zdaniem w 30 metrach spokojnie Classic 25 się sprawdza , moim zdaniem jest raczej inna kwestia, czy taki bas ci się spodoba . W moim odczuciu całościowo robiły piorunujące wrażenie ale sam bas przy na prawdę niskich zejściach nie był tak szybki i sprężysty ale powtórzę to nie musi być wcale wada i ja bardzo wnikliwie tego słuchałem . Dopiero teraz jak mam Classic 5 oraz moje Vienna acoustic grand Haydn monitory to słyszę , w Vienna -ach bass również nie jest tak szybki . W pierwszym momencie jak podłączyłem Classic 5 to mi się wydawało że basu nie ma ale jak włączyłem kawałki w których wiem że on jest zrozumiałem że ten bass jest bardzo sprężysty i szybki. Może warto spróbować innych AP trochę jest tego na olx. Pozdrawiam
-
Gdyż jest sporo reklamacji na oprogramowanie ! o ile używa się podstawowych ustawień to jest spokój , lecz gdy zmienia się preferencje to kaplica.
-
Niestety 32” zbyt wielki byk dla mnie. Ale pewnie super do konsoli. Przenigdy nie wyrzucaj!
-
Chodzi o to, że pewno się grzeje i kondensatory dostają po gaciach chyba, że się mylę i chodzi o stan ciągłego naładowania pod napieciem, albo co...
-
Na czacie w ogóle nie odpisuje.
-
nie ma DX5 II w całym kraju 😜
-
Apollon Purifi EIGENTAKT 1ET6525SA (2 generacja 1ET400A)
topic odpisał radziulek85 na maskun w Nasze testy
Łatwiej chyba na czacie bezpośrednio. Ja przynajmniej odpowiedź od razu dostałem -
Paweł-czy mógłbyś rozwinąć temat "wystarczy zapomnieć go wyłączyć na noc i parę razy to powtórzyć ..." odnośnie wzmacniaczy i końcówek mocy MOS? Pozdrawiam
-
A ja czekam na op ampy od apollon już 70 dni. Miał dosłać, nawet nie ma kontaktu mailowego z chłopem . O wzmacniacz też musiałem pisać maile bo by chyba zapomniał . Będę prosił o zwrot kasy. Jak bym wiedział to bym sobie sam poskładał lub kupił gdzie indziej.
-
Apollon Purifi EIGENTAKT 1ET6525SA (2 generacja 1ET400A)
topic odpisał Ronald na maskun w Nasze testy
Cos tam poskładałem w życiu i działa i nie zabiło. Na klasę D zwróciłem już dawno uwagę jak była taka polska firma Audiomatus. Poskładałem sobie końcówki z icepower ASP 500 do tego pre na e88cc i gram do dzisiaj na tym czasami. Ciekawe czy duza.roznica między tymi nowymi Puriffi a icepower ASP 500. Moje to juz leciwe. -
Mam najwyższy model kineskopowego TV. Tylko jest większy. KV-32HQ150
-
Q21 zaczął obserwować Wybór okablowania do Denon X6700 + MA Silver 500
-
Cześć Na pewno warto byłoby jeszcze sprawdzić nową markę Age Reborn oraz klasykę, czyli Chorda Mogą bardziej Ci odpowiadać patrząc na Twoje oczekiwania W razie czego zapraszam do kontaktu. Sprawdzisz te kable na własne uszy i sam ocenisz, który najbardziej Ci pasuje
-
Dzisiejsze posty
-
Cześć i pozdrawiam wszystkich serdecznie, Proszę o poradę czy zestaw nad którym myślę będzie dobrze dobrany do pomieszczenia i jak w miarę możliwości te kolumny sensownie rozmieścić ? Dom jednorodzinny, salon 30 m2 - wysoki sufit Aktualnie w obecnym mieszkaniu o mniejszych gabarytach użytkuję * kolumny głośnikowe Monitor Audio Bronze 2 na podstawkach, * Monitor Audio bronze center, * Kolumny surround Monitor Audio Bronze FX, * Subwoofer JBL. W planach po przeprowadzce planuje ulepszyć zestaw z racji większego salonu na: * Monitor Audio Silver 500, * Monitor Audio Silver C250, * SVS SB2000 PRO Subwoofer Z racji układu pomieszczenia ciężko tu zamontować Monitor Audio FX - ewentualnie czy one mają sens bycia w miejscu zaznaczone kółkiem koloru żółtego? Kolumny surround aby ograniczyć budżet chciałbym wykorzystać Brozne 2 na podstawkach, które już mam. Kolumnę koło kominka będą musiał cały czas przestawiać, no chyba, że ktoś tu widzi jakieś inne sensowne rozwiązanie? Amplituner już zakupiłem w tym roku - Denon X3800h. Przeznaczenie kino / muzyka. Dolby Atmos - co my myślicie na tym wysokim suficie? Jakieś możliwości, rozwiązania, czy nie brać pod uwagę? Proszę o poradę co do rozmieszczenia głośników, opinie nt zestawu, czy będzie odpowiedni co do wielkości salonu. Nie ukrywam, że obawiam się trochę tego wysokiego sufitu jak to ze sobą współgra.. Tv 65/77 cali, odległość do sofy około 350 cm. Zdjęcia poglądowe, plan oryginalny zmodyfikowany - TV zaznaczony kolorem czerwonym (na szerszej ścianie). Z góry dziękuję za pomoc i wszelkie uwagi.
-
Czy można przyjąć jakiś optymalny stosunek powierzchnii perforacji do ogólnej powierzchnii wszystkich płaszczyzn w pomieszczeniu? Przyjmijmy, że pomieszczenie jest w nowoczesnej aranżacji, duże okna, twarde powierzchnie. Sufit stanowi 25% wszystkich powierzchnii w pomieszczeniu. Czy w takim przypadku nie będzie przesadą, gdy cały sufit pokryjemy płytą perforowaną?
-
Przez Krystian Forszpaniak · Napisano
Szanowni, Czy Lyngdorf TDAI 1120 "uciągnie" z dobrym efektem Pylon Audio Jasper 23? Czy byłby to raczej mezalians dla Pylona? -
Nie słuchałem ale lepszą opcją w tej chwili wydają się Opticony, np porównując Sonik 7 vs Opitcon 6 mk2 cena jest zbliżona a dostajemy kolumny sytuowane przez Dali serię wyżej
-
No dlatego go trzymam. Nawet oryginalny, aluminiowy pilot jest. To ma 70kg żywej wagi.
-
To zrobiło się teraz. Wcześniej było ok. I inne źródła dźwięku też dają dobry dźwięk. Tylko Tidal connect z telefonu tak kaszani. I to od dwóch tygodni. Wcześniej było dobrze.
-
Nie wiem.... obawiam się, że nawet jeżeli nie jest słyszalny sam mechanizm, to może być słychać wirujący dysk...🤔. Mam taką deskę do krojenia z ikei, byloby do kompletu...😄 Nie wiedziałem, że Chord robi odtwarzacze. Dość pretensjonalne wzornictwo. Ciekawe czy forma przerosła treść....
-
Słuchałem AP Classic 8 u kolegi którego pokój ma jakieś 22-23 metry i w żadnym wypadku nie było problemu z basem. Moim zdaniem w 30 metrach spokojnie Classic 25 się sprawdza , moim zdaniem jest raczej inna kwestia, czy taki bas ci się spodoba . W moim odczuciu całościowo robiły piorunujące wrażenie ale sam bas przy na prawdę niskich zejściach nie był tak szybki i sprężysty ale powtórzę to nie musi być wcale wada i ja bardzo wnikliwie tego słuchałem . Dopiero teraz jak mam Classic 5 oraz moje Vienna acoustic grand Haydn monitory to słyszę , w Vienna -ach bass również nie jest tak szybki . W pierwszym momencie jak podłączyłem Classic 5 to mi się wydawało że basu nie ma ale jak włączyłem kawałki w których wiem że on jest zrozumiałem że ten bass jest bardzo sprężysty i szybki. Może warto spróbować innych AP trochę jest tego na olx. Pozdrawiam
-
Gdyż jest sporo reklamacji na oprogramowanie ! o ile używa się podstawowych ustawień to jest spokój , lecz gdy zmienia się preferencje to kaplica.
-
Dzisiejsze tematy